Aktuelles

Dachaus Höhle der Löwen

Bei der ersten „Pitching-Night“ im Gründwerk können junge Unternehmer die Idee hinter ihren Start-ups vorstellen. Am Ende gewinnt ein Architekt, der eine Software zur Beschleunigung von Bauplanungen entwickelt hat...

Weiterlesen

Bauindustrie meets Startups

Unter diesem Motto begrüßte Dipl.-Ing. Josef Geiger, Präsident des Bayerischen Bauindustrieverbandes, am 07. März zum zweiten Mal junge Start-Up Unternehmen, die den Vorstands- und Beiratsmitgliedern des Bayerischen Bauindustrieverbandes im Rahmen einer PITCH-Session ihre Innovationen und Neuheiten präsentierten, die für die bayerische...

Weiterlesen

Süddeutsche Zeitung: Erfolgreicher Start - Gründerzentrum Dachau

Einige Gründer haben ihre Produkte schon bis zur Markteinführung gebracht, wie Unvyl, das Lösungen zur Digitalisierung von Unternehmen anbietet, oder Bauanalyse.com, das Potenzialanalysen für Baugrundstücke durchführt...

Weiterlesen

Neuer Artikel auf Competitionline:
"Die virtuelle Jagd auf die bebaubaren Flächen"

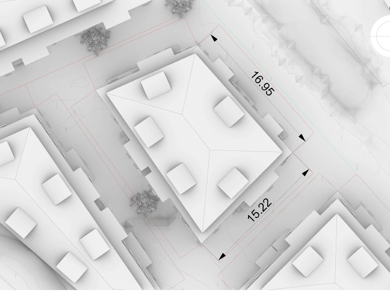
Software, die das Bebauungspotential von Grundstücken ermittelt wird immer ausgefeilter. Auf der Webseite BauAnalyse.com funktioniert das 70% automatisch...

Weiterlesen

Neuer Artikel in der Immobilien-Zeitung:
"Die virtuelle Jagd auf die bebaubaren Flächen"

Software, die das Bebauungspotential von Grundstücken ermittelt wird immer ausgefeilter. Auf der Webseite BauAnalyse.com funktioniert das 70% automatisch...

Weiterlesen

Neuer Artikel im Immobilienmanger-Magazin: "Neuer Algorithmus zur Wohnflächenmaximierung"

Das Start-Up BauAnalyse.com hat einen Algorithmus zur Berechnung der maximalen Baumasse auf Grundstücken entwickelt. Paul Metzger erklärt, wie es zur Gründung kam...

Weiterlesen

Hallo, ich bin der Gründer von BauAnalyse.com. Nach meiner 7-jährigen praktischen Arbeit in Architekturbüros in und um München entstand dieses Projekt aus meiner Masterarbeit heraus, welche ich an der TU München zum Thema "Automatisierte Ermittlung von Nachverdichtungspotentialen" geschrieben habe.

Für die, die es ganz genau wissen wollen:
Download Masterarbeit [PDF]

Paul Metzger, Inhaber
M.Sc. (TUM) Ressourceneffizientes und Nachhaltiges Bauen
B.Sc. Architektur

Newsletter

Bleiben Sie über Neuigkeiten informiert! Wir informieren Sie nur über wirklich wichtige Änderungen:

  • Gebietserweiterungen
  • Softwareupdates
  • Preisänderungen